beschikbaar

Op den Bosch 3a - Maashees

€ 575.000,- k.k.

icon
172 m2
icon
970 m2
icon
1986
icon
3
icon
C
iconOmschrijving
iconFoto's & video's
iconAlle kenmerken
iconPlattegronden

Omschrijving

Vrijstaand wonen met ruimte, comfort én een prachtig vrij uitzicht over de weilanden!
Deze vrijstaande woning uit 1986 is gelegen op een mooie, rustige locatie en biedt verrassend veel ruimte, zowel binnen als buiten. De De woning is levensloopbestendig met een slaapkamer en badkamer op de begane grond, beschikt over een volledige onderkeldering en heeft daarnaast nog twee zeer ruime slaapkamers en een tweede badkamer op de verdieping. De fraai aangelegde tuin met meerdere terrassen, kas en vrij uitzicht maakt het geheel compleet.

Pluspunten
- Levensloopbestendig wonen (slaapkamer en badkamer op begane grond)
- Volledig onderkelderd met inpandige garage
- Inpandige garage in het souterrain met elektrische deur
- Carport en extra opslag naast de woning
- Fraai aangelegde tuin met sproei-installatie en grondwaterpomp
- Meerdere terrassen en kas aanwezig
- Vrij uitzicht over de weilanden
- Twee zeer ruime slaapkamers op de verdieping (mogelijkheid tot extra kamers)
- Vloerverwarming op de begane grond (woonkamer, keuken en badkamer)
- Spekstenen houtkachel in de woonkamer

Indeling
Begane grond
Entree met hal en trapopgang. Vanuit de hal toegang tot de ruime woonkamer, voorzien van veel lichtinval en een sfeervolle spekstenen houtkachel. De keuken is gelegen aan de achterzijde en voorzien van een oven, koelkast, diepvries en vaatwasser (2024). Op de begane grond bevindt zich tevens een ruime slaapkamer met directe toegang tot de badkamer (ensuite). De badkamer is voorzien van een ligbad, douche, toilet en wastafel.
Verder is er een praktische bijkeuken met aansluitingen.

Eerste verdieping
Overloop met toegang tot twee zeer ruime slaapkamers. Door het formaat van de kamers is het mogelijk om extra slaapkamers te realiseren. De tweede badkamer is voorzien van een ligbad, douche, toilet, wastafel en wasmachineaansluiting.

Zolder
Via een vlizotrap bereikbare bergzolder met opstelling van de cv-ketel.

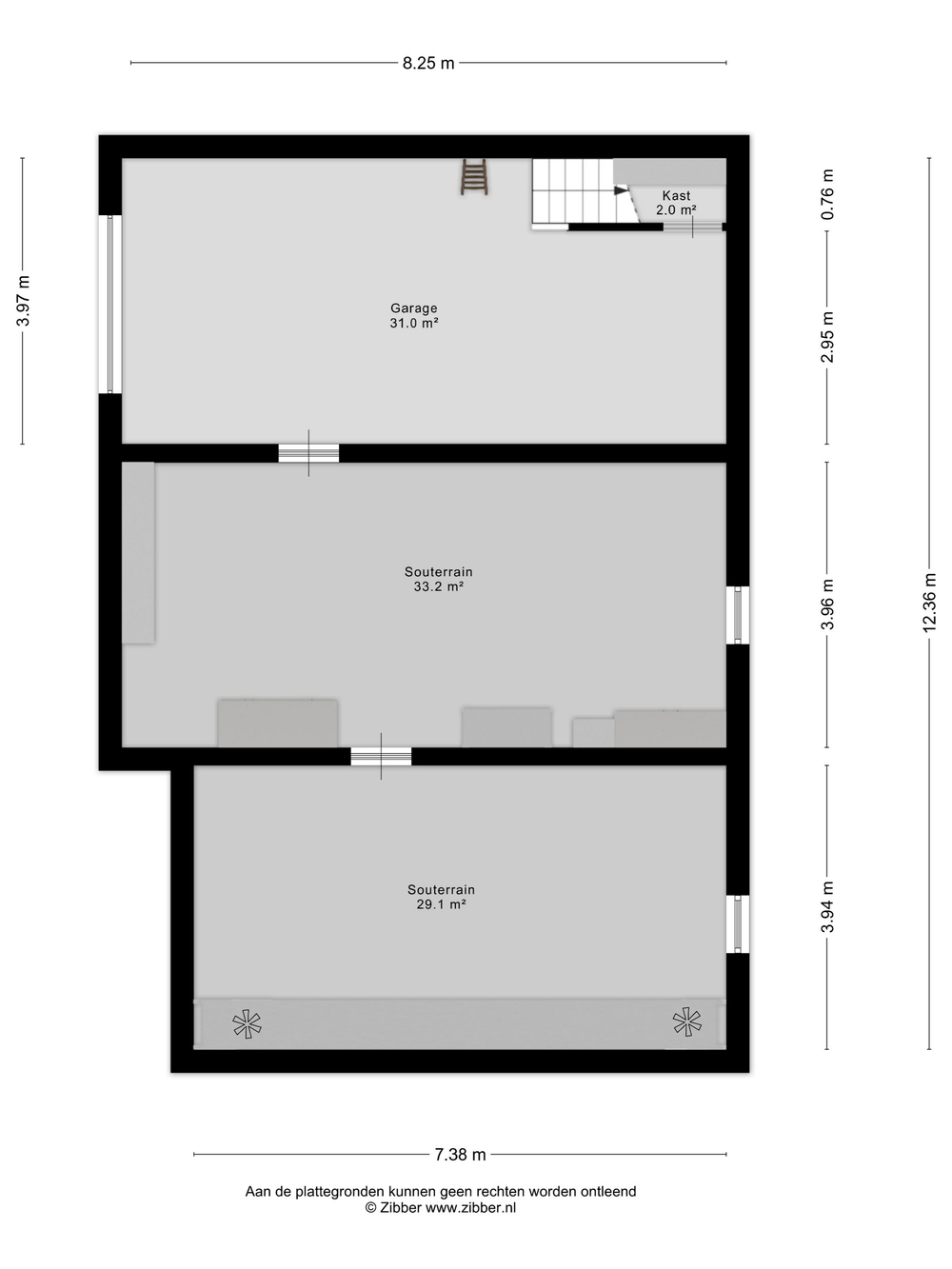
Souterrain / kelder
De woning is volledig onderkelderd en biedt zeer veel extra ruimte. Hier bevindt zich tevens de inpandige garage met elektrische deur. De kelder is daarnaast geschikt voor opslag, hobbyruimte of werkruimte.

Tuin
De fraai aangelegde tuin rondom de woning biedt volop privacy en diverse zitplekken. Er zijn meerdere terrassen aanwezig, een kas en een sproei-installatie met grondwaterpomp. Daarnaast beschikt de woning over een carport en extra bergruimte naast de woning. Vanuit de tuin geniet je van een prachtig vrij uitzicht over de omliggende weilanden.

Kenmerken
Type: vrijstaande woning
Bouwjaar: 1986
Perceeloppervlakte: 970 m²
Woonoppervlakte: 172 m²
Overige inpandige ruimte: 114 m²
Gebouwgebonden buitenruimte: 53 m²
Inhoud: 1.059 m³
Aantal slaapkamers: 3 (mogelijkheid tot meer)
Verwarming: cv-ketel ATAG (2008)
Vloerverwarming begane grond (woonkamer, keuken en badkamer)
Isolatie: dak-, muur- en vloerisolatie en dubbel glas
Energielabel: C
Elektrische zonnescreens (westzijde)
3-fasen elektra en krachtstroom
Glasvezel aanwezig

Alle kenmerken

Overdracht

Koopprijs € 575.000,- k.k.
Status Beschikbaar
Aanvaarding In overleg

Bouwvorm

Type Vrijstaande woning
Soort Eengezinswoning
Bouwjaar 1986
Bouwvorm Bestaande bouw
Liggingen Buiten bebouwde kom, Landelijk gelegen

Indeling

Gebruiksoppervlakte woonfunctie 172 m²
Perceel oppervlakte 970 m²
Inhoud 1059 m³
Aantal kamers 6
Aantal slaapkamers 3
Aantal verdiepingen 4

Energie

Energieklasse C
Energielabel einddatum 17 maart 2036
Isolatievormen Dakisolatie, Muurisolatie, Vloerisolatie, Dubbel glas
Soorten warm water Cv ketel
Soorten verwarming Cv ketel, Vloerverwarming gedeeltelijk
Cv ketel type Atag
Cv ketel bouwjaar 2008
Cv combiketel Ja
Cv ketel brandstof Gas
Cv ketel eigendom Eigendom

Buitenruimte

Tuintypen Achtertuin, Voortuin
Type Achtertuin
Oppervlakte 405 m²
Positie Zuidoost
Achterom Nee
Kwaliteit Fraai aangelegd

Bergruimte

Parkeergelegenheid

Garage voorzieningen Elektra, Elektrische deur
Parkeer faciliteiten Op eigen terrein

Dak

Daktype Zadeldak

Overig

Permanente bewoning Ja
Onderhouds waardering binnen Goed
Onderhouds waardering buiten Goed
Huidig gebruik Woonruimte
Huidige bestemming Woonruimte

Voorzieningen

Voorzieningen Tv kabel, Rookkanaal, Schuifpui, Dakraam, Glasvezel kabel

Plattegronden

Wij maken gebruik van cookies

We gebruiken cookies om onze website te personaliseren en te verbeteren, om functies voor social media te bieden en om ons websiteverkeer te analyseren. Ook delen we informatie over uw gebruik van onze site met onze partners voor social media, adverteren en analyse. Deze partners kunnen deze gegevens combineren met andere informatie die u aan ze heeft verstrekt of die ze hebben verzameld op basis van uw gebruik van hun services.

Noodzakelijk
Analytisch
Personalisatie
Marketing