onder bod

Koningsspil 9 - Rijkevoort

€ 399.000,- k.k.

icon
101 m2
icon
189 m2
icon
2011
icon
2
icon
A
iconOmschrijving
iconFoto's & video's
iconAlle kenmerken
iconPlattegronden

Omschrijving

Instapklaar, energiezuinig en modern afgewerkt! Deze nette geschakelde 2-onder-1 kapwoning uit 2011 combineert comfort met duurzaamheid. Met 10 zonnepanelen (2023), maar liefst 3 airco’s (2024 & 2025), vloerverwarming in de woonkamer én badkamer en een WTW-installatie is dit een woning die helemaal klaar is voor de toekomst. De hoogwaardige afwerking, waaronder een massief eiken keuken, maakt het plaatje compleet. De ligging in een fijne nieuwe woonwijk is ideaal. Kortom, een woning die je zeker gezien wil hebben!

Pluspunten
- 10 zonnepanelen (2023)
- 3 airco’s 2024 & 2025 (koelen én verwarmen)
- Vloerverwarming in woonkamer en badkamer
- WTW-installatie voor optimaal binnenklimaat
- Luxe massief eiken keuken
- Badkamer met dubbele wastafel, toilet en inloopdouche
- Bouwjaar 2011

Indeling
Begane grond
Entree met hal, meterkast en toiletruimte. De woonkamer is tuingericht en geniet van veel lichtinval. Dankzij de vloerverwarming en airco is het hier het hele jaar door comfortabel. De open keuken aan de voorzijde is uitgevoerd in massief eiken en is voorzien van koelkast, combi-oven, vaatwasser, inductiekookplaat en afzuigkap.
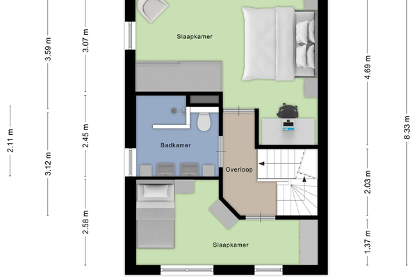
Eerste verdieping
Overloop met toegang tot 2 slaapkamers (derde mogelijk) en de badkamer. De badkamer is modern afgewerkt en voorzien van een dubbele wastafel, toilet en ruime inloopdouche. Ook hier is vloerverwarming aanwezig. Beide slaapkamers zijn voorzien van airconditioning.
Tweede verdieping
Via vaste trap bereikbare zolderverdieping. Een praktische ruimte die geschikt is als berging, werkruimte of hobbyruimte.

Tuin
De woning beschikt over een verzorgde tuin waar u heerlijk kunt ontspannen. Dankzij de geschakelde bouw geniet u hier van een prettige combinatie van privacy en openheid. Een fijne plek om te genieten van het buitenleven.

Kenmerken
- Type woning: geschakelde 2-onder-1 kapwoning
- Woonoppervlakte: 101 m²
- Zolder: 11 m²
- Inhoud: 397 m³
- Perceel: 189 m²
- Bouwjaar: 2011
- Energielabel: A
- Aantal slaapkamers: 2 (3e mogelijk)
- Verwarming/warm water: Cv-ketel Extreme intergas 2023, 3 airco’s 2024 & 2025
- Zonnepanelen 10 stuks (2023)
- Isolatie: volledig
- Glasvezel aanwezig

Alle kenmerken

Overdracht

Koopprijs € 399.000,- k.k.
Status Onder bod
Aanvaarding In overleg

Bouwvorm

Type Twee onder een kapwoning
Soort Eengezinswoning
Bouwjaar 2011
Bouwvorm Bestaande bouw
Liggingen Aan rustige weg, In woonwijk

Indeling

Gebruiksoppervlakte woonfunctie 101 m²
Perceel oppervlakte 189 m²
Inhoud 396 m³
Aantal kamers 3
Aantal slaapkamers 2
Aantal verdiepingen 3

Energie

Energieklasse A
Energielabel einddatum 11 december 2030
Isolatievormen Volledig geisoleerd
Soorten warm water Cv ketel
Soorten verwarming Cv ketel, Vloerverwarming gedeeltelijk, Warmte terugwininstallatie
Cv ketel type Intergas
Cv ketel bouwjaar 2023
Cv combiketel Ja
Cv ketel brandstof Gas
Cv ketel eigendom Eigendom

Buitenruimte

Tuintypen Achtertuin, Voortuin
Type Achtertuin
Oppervlakte 68 m²
Positie West
Achterom Ja
Kwaliteit Normaal

Bergruimte

Soort Aangebouwd steen
Type Voorzien van elektra

Parkeergelegenheid

Parkeer faciliteiten Openbaar parkeren, Op eigen terrein

Dak

Daktype Schilddak

Overig

Permanente bewoning Ja
Onderhouds waardering binnen Goed
Onderhouds waardering buiten Goed
Huidig gebruik Woonruimte
Huidige bestemming Woonruimte

Voorzieningen

Voorzieningen Tv kabel, Airconditioning, Dakraam, Glasvezel kabel, Zonnepanelen

Plattegronden

Wij maken gebruik van cookies

We gebruiken cookies om onze website te personaliseren en te verbeteren, om functies voor social media te bieden en om ons websiteverkeer te analyseren. Ook delen we informatie over uw gebruik van onze site met onze partners voor social media, adverteren en analyse. Deze partners kunnen deze gegevens combineren met andere informatie die u aan ze heeft verstrekt of die ze hebben verzameld op basis van uw gebruik van hun services.

Noodzakelijk
Analytisch
Personalisatie
Marketing