verkocht onder voorbehoud

Klaproos 8 - Boxmeer

€ 375.000,- k.k.

icon
86 m2
icon
119 m2
icon
2016
icon
2
icon
A
iconOmschrijving
iconFoto's & video's
iconAlle kenmerken
iconPlattegronden

Omschrijving

Met een totale gebruiksoppervlakte van ruim 103 m² biedt deze moderne tussenwoning volop ruimte én de mogelijkheid om extra (slaap)kamers te realiseren. De woning is gelegen aan de Klaproos 8 in een jonge en populaire woonwijk van Boxmeer, op korte afstand van het centrum, het ziekenhuis en de uitvalswegen. Gebouwd in 2016, uitstekend geïsoleerd en voorzien van energielabel A, woon je hier comfortabel en energiezuinig. Met onder andere vloerverwarming op de begane grond, een comfortabele badkamer, een nette moderne keuken en een onderhoudsvriendelijke tuin met berging, is dit een ideale woning voor starters of jonge gezinnen. Zie jij jezelf hier wel wonen? Maak dan nu een afspraak voor een bezichtiging!

Pluspunten op een rij:

- Energielabel A en volledig geïsoleerd
- Vloerverwarming op de begane grond
- Bouwjaar 2016 – instapklaar
- Gemakkelijk 4 slaapkamers te realiseren
- Gelegen in jonge woonwijk nabij uitvalswegen en ziekenhuis
- Onderhoudsvriendelijke tuin met berging en achterom

Indeling
Begane grond:
Entree/hal met meterkast, trapopgang en toiletruimte met fontein. Tuingerichte woonkamer met veel lichtinval, trapkast en deur naar het terras. Aan de voorzijde van de woning ligt de moderne open keuken, voorzien van een oven, koel-vriescombinatie, vaatwasser, gasfornuis en afzuigkap.
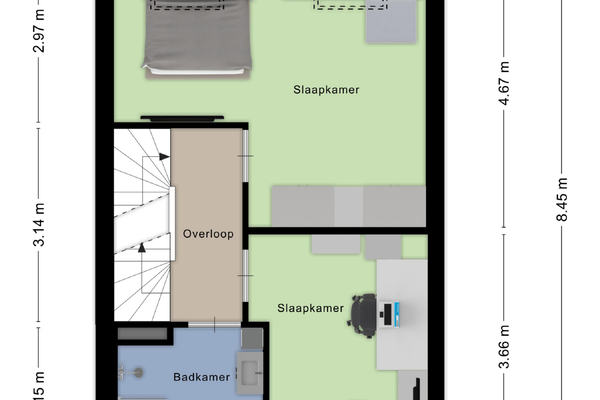
Eerste verdieping:
Overloop met toegang tot 2 slaapkamers, waarvan 1 ruime slaapkamer op te splitsen is in 2 slaapkamers, en de badkamer. De badkamer is uitgerust met een inloopdouche, wastafel en tweede toilet.
Tweede verdieping:
Ruime zolder bereikbaar via een vaste trap, met aansluitingen voor wasmachine en droger. Ideaal als hobbyruimte, berging of werkkamer. Tevens de mogelijkheid om een extra slaapkamer te realiseren.
Tuin
De achtertuin is onderhoudsvriendelijk aangelegd, voorzien van een terras met elektrisch zonnescherm en een buitenkraantje. Achterin staat een houten berging, ideaal voor fietsen en tuingereedschap. Via de achterom is de tuin ook gemakkelijk bereikbaar.

Kenmerken:
- Type woning: Tussenwoning
- Woonoppervlakte: 85,8 m²
- Overige inpandige ruimte (zolderverdieping): 17,5 m²
- Externe bergruimte: 7,6 m²
- Inhoud: 365,86 m³
- Bouwjaar: 2016
- Energielabel: A
- Verwarming/warm water: Intergas cv-ketel (2016), vloerverwarming begane grond
- Isolatie: Volledig
- Glasvezel aanwezig

Alle kenmerken

Overdracht

Koopprijs € 375.000,- k.k.
Status Verkocht onder voorbehoud
Aanvaarding In overleg

Bouwvorm

Type Tussenwoning
Soort Eengezinswoning
Bouwjaar 2016
Bouwvorm Bestaande bouw
Liggingen Aan rustige weg, In woonwijk

Indeling

Gebruiksoppervlakte woonfunctie 86 m²
Perceel oppervlakte 119 m²
Inhoud 365 m³
Aantal kamers 3
Aantal slaapkamers 2
Aantal verdiepingen 3

Energie

Energieklasse A
Energielabel einddatum 24 juni 2026
Isolatievormen Volledig geisoleerd
Soorten warm water Cv ketel
Soorten verwarming Cv ketel, Vloerverwarming gedeeltelijk
Cv ketel type Intergas
Cv ketel bouwjaar 2016
Cv combiketel Ja
Cv ketel brandstof Gas
Cv ketel eigendom Eigendom

Buitenruimte

Tuintypen Achtertuin, Voortuin
Type Achtertuin
Oppervlakte 49 m²
Positie Zuidoost
Achterom Ja
Kwaliteit Normaal

Bergruimte

Soort Vrijstaand hout
Type Voorzien van elektra

Parkeergelegenheid

Parkeer faciliteiten Openbaar parkeren

Dak

Daktype Zadeldak

Overig

Permanente bewoning Ja
Onderhouds waardering binnen Goed
Onderhouds waardering buiten Goed
Huidig gebruik Woonruimte
Huidige bestemming Woonruimte

Voorzieningen

Voorzieningen Mechanische ventilatie, Tv kabel, Buitenzonwering, Dakraam, Glasvezel kabel

Foto's

Video's

Plattegronden

Wij maken gebruik van cookies

We gebruiken cookies om onze website te personaliseren en te verbeteren, om functies voor social media te bieden en om ons websiteverkeer te analyseren. Ook delen we informatie over uw gebruik van onze site met onze partners voor social media, adverteren en analyse. Deze partners kunnen deze gegevens combineren met andere informatie die u aan ze heeft verstrekt of die ze hebben verzameld op basis van uw gebruik van hun services.

Noodzakelijk
Analytisch
Personalisatie
Marketing