verkocht

Katsestraat 31 - Oeffelt

€ 425.000,- k.k.

icon
108 m2
icon
241 m2
icon
1999
icon
4
icon
B
iconOmschrijving
iconFoto's & video's
iconAlle kenmerken
iconPlattegronden

Omschrijving

Op zoek naar een moderne en royale twee-onder-een-kapwoning in een rustige en kindvriendelijke woonwijk, gelegen aan een speelveld? Dan is Katsestraat 31 in Oeffelt absoluut het bekijken waard. Deze goed onderhouden woning is de afgelopen jaren op diverse punten gemoderniseerd en biedt fijne leefruimtes, vier slaapkamers, een uitbouw met bijkeuken, garage, eigen oprit en een zonnige tuin met twee overkappingen, waaronder één met houtkachel. Met volop bergruimte en een prettige indeling is dit een ideale gezinswoning op een fijne locatie.

Pluspunten op een rij:
- Fraai aangelegde tuin met overkapping en houtkachel
- Aangebouwde, geïsoleerde garage met vliering en aansluitende berging
- Eigen oprit en vrije achterom
- Moderne keuken en bijkeuken (2018)
- Schilderwerk uitgevoerd in 2025
- Volledig geïsoleerd
- Energielabel B
- Vier slaapkamers

Indeling
Begane grond: Entree/hal met meterkast en toiletruimte. Vanuit de hal kom je in de zeer lichte en ruime woonkamer met open verbinding naar de moderne keuken. De keuken is voorzien van diverse inbouwapparatuur, waaronder een combi-oven, vaatwasser (2025), koelkast, inductiekookplaat en afzuigkap. Aansluitend bevindt zich de praktische bijkeuken met keukenblokje en wastafel. Vanuit een tussenhal met trapkast is de trap naar de eerste verdieping bereikbaar.
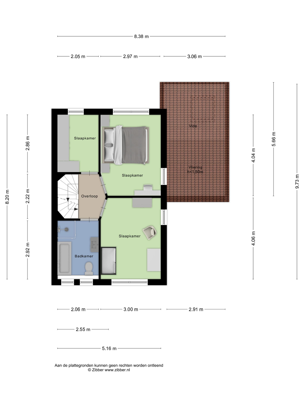
Eerste verdieping: Overloop met toegang tot drie slaapkamers en een ruime badkamer met douche, ligbad, toilet en wastafel.
Tweede verdieping: Overloop met vaste kast, een vierde slaapkamer en een aparte was- en cv-ruimte met veel bergruimte.
Buiten: De verzorgde en moderne achtertuin is voorzien van een overkapping aan het huis én een vrijstaande overkapping met houtkachel. Daarnaast zijn er een aangebouwde garage met vliering en een aansluitende berging. Een fijne buitenruimte waar je het hele jaar door kunt genieten.

Kenmerken
Type woning: Twee-onder-een-kapwoning
Woonoppervlakte: ca. 107,8 m²
Aangebouwde garage en berging: ca. 22,9 m²
Overkapping aan huis: ca. 6,4 m²
Inhoud: ca. 463 m³
Perceeloppervlakte: 241 m²
Aantal slaapkamers: 4
Bouwjaar: 1999
Energielabel: B
Verwarming en warm water: Nefit Proline (bouwjaar 2020)
Isolatie: Volledig geïsoleerd
Glasvezel aanwezig

Alle kenmerken

Overdracht

Koopprijs € 425.000,- k.k.
Status Verkocht
Aanvaarding In overleg

Bouwvorm

Type Twee onder een kapwoning
Soort Eengezinswoning
Bouwjaar 1999
Bouwvorm Bestaande bouw
Liggingen Aan rustige weg, In woonwijk

Indeling

Gebruiksoppervlakte woonfunctie 108 m²
Perceel oppervlakte 241 m²
Inhoud 463 m³
Aantal kamers 5
Aantal slaapkamers 4
Aantal verdiepingen 3

Energie

Energieklasse B
Energielabel einddatum 08 november 2028
Isolatievormen Volledig geisoleerd
Soorten warm water Cv ketel
Soorten verwarming Cv ketel
Cv ketel type Nefit Proline
Cv ketel bouwjaar 2020
Cv combiketel Ja
Cv ketel brandstof Gas
Cv ketel eigendom Eigendom

Buitenruimte

Tuintypen Achtertuin, Voortuin
Type Achtertuin
Oppervlakte 99 m²
Positie Noordwest
Achterom Ja
Kwaliteit Normaal

Bergruimte

Soort Aangebouwd steen

Parkeergelegenheid

Garage voorzieningen Elektra, Vliering
Parkeer faciliteiten Openbaar parkeren, Op eigen terrein

Dak

Daktype Tentdak

Overig

Permanente bewoning Ja
Onderhouds waardering binnen Goed
Onderhouds waardering buiten Goed
Huidig gebruik Woonruimte
Huidige bestemming Woonruimte

Voorzieningen

Voorzieningen Mechanische ventilatie, Tv kabel, Dakraam, Glasvezel kabel

Plattegronden

Wij maken gebruik van cookies

We gebruiken cookies om onze website te personaliseren en te verbeteren, om functies voor social media te bieden en om ons websiteverkeer te analyseren. Ook delen we informatie over uw gebruik van onze site met onze partners voor social media, adverteren en analyse. Deze partners kunnen deze gegevens combineren met andere informatie die u aan ze heeft verstrekt of die ze hebben verzameld op basis van uw gebruik van hun services.

Noodzakelijk
Analytisch
Personalisatie
Marketing