beschikbaar

Heihoekscheweg 1a - Vierlingsbeek

€ 525.000,- k.k.

icon
149 m2
icon
525 m2
icon
1992
icon
3
icon
B
iconOmschrijving
iconFoto's & video's
iconAlle kenmerken
iconPlattegronden

Omschrijving

Vrijstaand wonen met volop ruimte, privacy én een heerlijke tuinkamer!
Aan een rustige weg in een prettige woonomgeving staat deze verrassend ruime vrijstaande woning met garage. De woning is gebouwd in 1992, volledig geïsoleerd en beschikt over energielabel B. Dankzij de praktische opzet, de lichte leefruimtes en de fijne tuinkamer is dit een ideale woning voor wie comfortabel en ruim wil wonen. De speelse indeling op de begane grond biedt mogelijkheid voor een speelkamer of kantoor aan huis. Nieuwsgierig geworden? Maak dan nu een afspraak!

Pluspunten
- Vrijstaande woning met veel privacy, gelegen in rustige woonwijk
- Speelse indeling op de begane grond
- Eenvoudig te realiseren werk- of speelkamer
- Sfeervolle, verwarmde tuinkamer
- 3 ruime slaapkamers op de 1e verdieping
- Energielabel B en 9 zonnepanelen (2019)
- Vrijstaande ruime garage met vliering

Indeling
Begane grond
Entree met meterkast, trapkast, toilet en trapopgang. Vanuit de hal toegang tot de ruime en lichte woonkamer met grote raampartijen. De speelse indeling biedt mogelijkheden voor het realiseren van een extra werk- of speelkamer.
De keuken is praktisch ingericht en staat in verbinding met de leefruimte en is voorzien van een combi-oven, vaatwasser, koelkast, vriezer, inductiekookplaat, afzuigkap en een granieten werkblad. Aan de achterzijde, grenzend aan de woonkamer bevindt zich de verwarmde tuinkamer (serre) met balkenplafond en rondom glas, een heerlijke plek om het hele jaar door te verblijven.
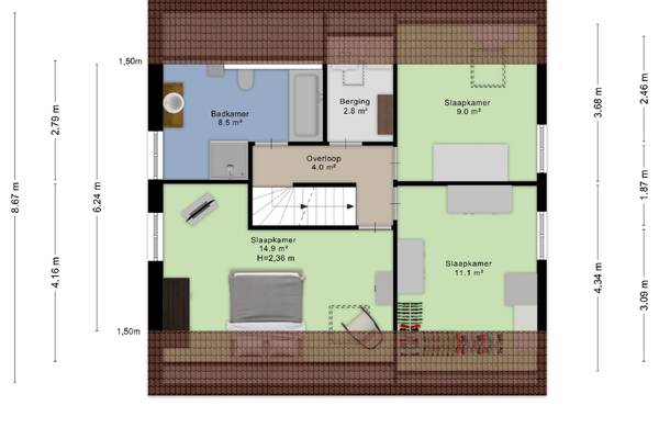
Eerste verdieping
Overloop met toegang tot drie slaapkamers, een praktische wasruimte en de badkamer. De badkamer is voorzien van een ligbad, douche, wastafel en toilet.
Zolder
Via een vaste trap bereikbare zolderverdieping met bergruimte en opstelling van de cv-ketel.
Tuin en garage
De woning beschikt over een verzorgde tuin rondom, waar je op verschillende plekken kunt genieten van zon en privacy. Daarnaast is er een vrijstaande, ruime garage aanwezig met vliering.

Kenmerken
- Type: vrijstaande woning
- Bouwjaar: 1992
- Perceeloppervlakte: 525 m²
- Aantal slaapkamers: 3
- Energielabel: B
- Volledig geïsoleerd
- Woonoppervlakte: 149 m²
- Overige inpandige ruimte: 10 m²
- Externe bergruimte: 30 m²
- Inhoud: 589 m³
- Verwarming: cv-ketel Nefit (2022)
- 9 zonnepanelen (2019)
- Glasvezel aanwezig

Alle kenmerken

Overdracht

Koopprijs € 525.000,- k.k.
Status Beschikbaar
Aanvaarding In overleg

Bouwvorm

Type Vrijstaande woning
Soort Eengezinswoning
Bouwjaar 1992
Bouwvorm Bestaande bouw
Liggingen Aan rustige weg, In woonwijk

Indeling

Gebruiksoppervlakte woonfunctie 149 m²
Perceel oppervlakte 525 m²
Inhoud 589 m³
Aantal kamers 4
Aantal slaapkamers 3
Aantal verdiepingen 3

Energie

Energieklasse B
Energielabel einddatum 16 januari 2034
Isolatievormen Volledig geisoleerd
Soorten warm water Cv ketel
Soorten verwarming Cv ketel
Cv ketel type Nefit
Cv ketel bouwjaar 2022
Cv combiketel Ja
Cv ketel brandstof Gas
Cv ketel eigendom Eigendom

Buitenruimte

Tuintypen Achtertuin, Voortuin
Type Achtertuin
Oppervlakte 233 m²
Positie West
Achterom Nee
Kwaliteit Fraai aangelegd

Bergruimte

Parkeergelegenheid

Garage voorzieningen Elektra, Vliering
Parkeer faciliteiten Openbaar parkeren, Op eigen terrein

Dak

Daktype Zadeldak

Overig

Permanente bewoning Ja
Onderhouds waardering binnen Goed
Onderhouds waardering buiten Goed
Huidig gebruik Woonruimte
Huidige bestemming Woonruimte

Voorzieningen

Voorzieningen Mechanische ventilatie, Tv kabel, Dakraam, Glasvezel kabel, Zonnepanelen

Plattegronden

Wij maken gebruik van cookies

We gebruiken cookies om onze website te personaliseren en te verbeteren, om functies voor social media te bieden en om ons websiteverkeer te analyseren. Ook delen we informatie over uw gebruik van onze site met onze partners voor social media, adverteren en analyse. Deze partners kunnen deze gegevens combineren met andere informatie die u aan ze heeft verstrekt of die ze hebben verzameld op basis van uw gebruik van hun services.

Noodzakelijk
Analytisch
Personalisatie
Marketing