verkocht

Gerard Terborchstraat 2 - Boxmeer

€ 319.000,- k.k.

icon
90 m2
icon
230 m2
icon
1968
icon
3
icon
C
iconOmschrijving
iconFoto's & video's
iconAlle kenmerken
iconPlattegronden

Omschrijving

Op een rustige locatie in Boxmeer ligt deze verrassend ruime hoekwoning aan de Gerard Terborchstraat 2. De woning is uitgebouwd en beschikt over een zonnige tuin op het zuidoosten. Recent is de woning ook nog uitgebreid met duurzame voorzieningen zoals 9 zonnepanelen en 2 airco's. Een fijne plek voor wie comfortabel wil wonen op korte afstand van winkels, scholen, station en uitvalswegen. Benieuwd naar deze woning? Wij leiden je graag rond!

Bijzonderheden
- Gelegen in een rustige buurt, dichtbij voorzieningen zoals scholen, winkels, station en uitvalswegen
- Keuken vernieuwd in 2017
- Zonnige achtertuin met achterom
- Vrijstaande garage met elektrische deur en eigen oprit
- Recent voorzien van 9 zonnepanelen (2024)
- Voorzien van 2 airco’s (2024), in woonkamer en slaapkamer

Indeling
Begane grond: Entree met hal, meterkast (2017), toilet met fontein, trapopgang en toegang tot de woonkamer, uitbouw met cv-opstelling toegang tot de halfopen keuken (2017) uitgerust met diverse inbouwapparatuur en vanuit de keuken en uitbouw uitzicht op de tuin.
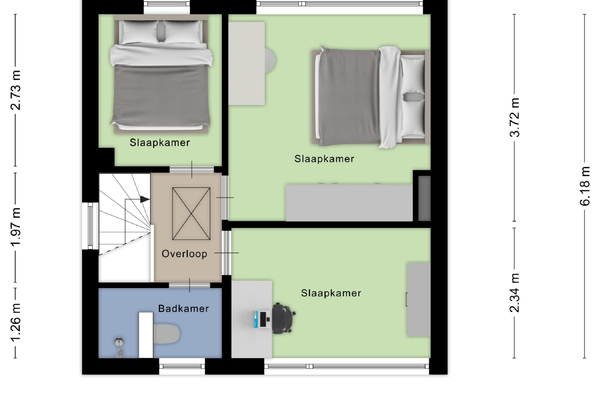
Eerste verdieping: Overloop met toegang tot drie slaapkamers en de badkamer voorzien van inloopdouche en toilet.
Tweede verdieping: Zolderverdieping bereikbaar via vlizo trap.
Tuin: De achtertuin is voorzien van een terras en gazon. Dankzij de ligging geniet je hier van veel zon. Via de achterom is de tuin eenvoudig bereikbaar. Daarnaast is er een vrijstaande stenen garage met elektrische deur en eigen oprit.

Kenmerken
- Type woning: Hoekwoning
- Woonoppervlakte: 90 m²
- Overige inpandige ruimte: 6 m²
- Externe bergruimte: 16 m²
- Inhoud: 344 m³
- Perceel: 230 m²
- Bouwjaar: 1968
- Energielabel: C
- Aantal slaapkamers: 3
- Verwarming/warm water: Cv-ketel (Vaillant 2014)
- Isolatie: dakisolatie en dubbel glas
- Glasvezel aanwezig

Alle kenmerken

Overdracht

Koopprijs € 319.000,- k.k.
Status Verkocht
Aanvaarding In overleg

Bouwvorm

Type Hoekwoning
Soort Eengezinswoning
Bouwjaar 1968
Bouwvorm Bestaande bouw
Liggingen Aan rustige weg, In woonwijk

Indeling

Gebruiksoppervlakte woonfunctie 90 m²
Perceel oppervlakte 230 m²
Inhoud 344 m³
Aantal kamers 4
Aantal slaapkamers 3
Aantal verdiepingen 3

Energie

Energieklasse C
Energielabel einddatum 26 januari 2036
Isolatievormen Dakisolatie, Dubbel glas
Soorten warm water Cv ketel
Soorten verwarming Cv ketel
Cv ketel type Vaillant
Cv ketel bouwjaar 2014
Cv combiketel Ja
Cv ketel brandstof Gas
Cv ketel eigendom Eigendom

Buitenruimte

Tuintypen Achtertuin, Voortuin, Zijtuin
Type Achtertuin
Oppervlakte 60 m²
Positie Zuidoost
Achterom Ja
Kwaliteit Normaal

Bergruimte

Parkeergelegenheid

Garage voorzieningen Elektra, Elektrische deur
Parkeer faciliteiten Openbaar parkeren, Op eigen terrein

Dak

Daktype Zadeldak

Overig

Permanente bewoning Ja
Onderhouds waardering binnen Redelijk
Onderhouds waardering buiten Redelijk
Huidig gebruik Woonruimte
Huidige bestemming Woonruimte

Voorzieningen

Voorzieningen Rolluiken, Tv kabel, Buitenzonwering, Airconditioning, Dakraam, Glasvezel kabel, Zonnepanelen

Foto's

Video's

Plattegronden

Wij maken gebruik van cookies

We gebruiken cookies om onze website te personaliseren en te verbeteren, om functies voor social media te bieden en om ons websiteverkeer te analyseren. Ook delen we informatie over uw gebruik van onze site met onze partners voor social media, adverteren en analyse. Deze partners kunnen deze gegevens combineren met andere informatie die u aan ze heeft verstrekt of die ze hebben verzameld op basis van uw gebruik van hun services.

Noodzakelijk
Analytisch
Personalisatie
Marketing