beschikbaar

Den Drul 19458 - Linden

€ 159.000,- k.k.

icon
51 m2
icon
196 m2
icon
2020
icon
2
icon
C
iconOmschrijving
iconFoto's & video's
iconAlle kenmerken
iconPlattegronden

Omschrijving

Vrijstaande recreatiewoning aan het water op EuroParcs Kraaijenbergse Plassen!
Op een rustige en groene locatie aan de prachtige Kraaijenbergse Plassen ligt deze
sfeervolle 4-persoons recreatiewoning op een perceel eigen grond van 196 m². De woning is gebouwd in 2020 en keurig onderhouden. Hier geniet je van rust, ruimte en water, midden in een natuurlijke omgeving. Perfect voor eigen gebruik, verhuur of als interessant investeringsobject!

Indeling en comfort
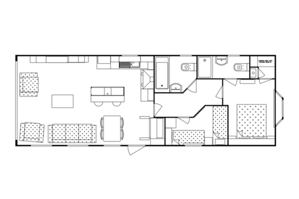
De woning wordt verkocht inclusief inboedel en heeft een functionele indeling: een woonkamer met open keuken en eethoek, twee comfortabele slaapkamers, en maar liefst twee badkamers, elk voorzien van eigen toilet en douche. Ideaal bij gelijktijdig gebruik of voor gasten! Buiten is er ruimte genoeg om te ontspannen: de schuifdeuren in de woonkamer geven toegang tot een terras en tuin rondom de woning. Parkeren kan op eigen terrein, direct naast de woning — wel zo handig!

Ligging en omgeving
EuroParcs Kraaijenbergse Plassen is gelegen in het mooie Land van Cuijk, midden in natuur- en recreatiegebied De Kraaijenbergse Plassen. Dit waterrijke gebied leent zich
uitstekend voor watersport, wandelen en fietsen. Het centrum van Cuijk met winkels, horeca en station ligt op korte afstand. Bovendien is ook Nijmegen goed bereikbaar.
Het park
Het kleinschalige en gezellige vakantiepark beschikt over diverse faciliteiten, waaronder een gezellig restaurant, diverse speeltuinen, een enthousiast animatieteam, zandstrand en aanlegsteigers. De parkplattegrond is bijgevoegd als bijlage. De vakantiewoning is gelegen op nummer 458.

Gebruik en investering
De woning is uitsluitend bedoeld voor recreatief gebruik — permanente bewoning is vooralsnog niet toegestaan. Er zijn verschillende gebruikersmodellen mogelijk, waaronder eigen gebruik, volledige verhuur of een combinatie hiervan. Dit maakt de woning ook aantrekkelijk als investeringsobject met stabiel rendement via het verhuurprogramma van EuroParcs. Meer informatie hierover is te vinden op: https://gebruikersmodellen.europarcs.nl Het rendement verschilt per gebruikersmodel.

Interesse?
Neem gerust contact met ons op voor meer informatie! Na het hoogseizoen is het mogelijk om een bezichtiging met ons in te plannen. Laat hiervoor je gegevens bij ons achter dan nemen we contact met je op zodra we een afspraak kunnen inplannen.

Alle kenmerken

Overdracht

Koopprijs € 159.000,- k.k.
Status Beschikbaar
Aanvaarding In overleg

Bouwvorm

Type Vrijstaande woning
Soort Stacaravan
Bouwjaar 2020
Bouwvorm Bestaande bouw
Liggingen Aan water, Aan rustige weg

Indeling

Gebruiksoppervlakte woonfunctie 51 m²
Perceel oppervlakte 196 m²
Inhoud 189 m³
Aantal kamers 3
Aantal slaapkamers 2
Aantal verdiepingen 1

Energie

Energieklasse C
Energielabel einddatum 12 december 2033
Isolatievormen Volledig geisoleerd
Soorten warm water Cv ketel
Soorten verwarming Cv ketel
Cv ketel type Morco
Cv ketel bouwjaar 2020
Cv combiketel Ja
Cv ketel brandstof Gas
Cv ketel eigendom Eigendom

Buitenruimte

Tuintypen Tuin rondom
Type Tuin rondom
Achterom Ja
Kwaliteit Normaal

Bergruimte

Parkeergelegenheid

Parkeer faciliteiten Op eigen terrein

Dak

Daktype Zadeldak

Overig

Permanente bewoning Nee
Onderhouds waardering binnen Goed tot uitstekend
Onderhouds waardering buiten Goed tot uitstekend
Huidig gebruik Woonruimte
Huidige bestemming Woonruimte

Voorzieningen

Plattegronden

Wij maken gebruik van cookies

We gebruiken cookies om onze website te personaliseren en te verbeteren, om functies voor social media te bieden en om ons websiteverkeer te analyseren. Ook delen we informatie over uw gebruik van onze site met onze partners voor social media, adverteren en analyse. Deze partners kunnen deze gegevens combineren met andere informatie die u aan ze heeft verstrekt of die ze hebben verzameld op basis van uw gebruik van hun services.

Noodzakelijk
Analytisch
Personalisatie
Marketing