onder bod

Burggraaf 1 - Vierlingsbeek

€ 459.000,- k.k.

icon
124 m2
icon
241 m2
icon
2014
icon
4
icon
A
iconOmschrijving
iconFoto's & video's
iconAlle kenmerken
iconPlattegronden

Omschrijving

Instapklaar, perfect afgewerkt en met een moderne uitstraling: deze lichte twee-onder-één-kapwoning heeft het allemaal. De woning, gebouwd in 2014, heeft een fraaie architectuur met mooi metselwerk, een mooie kap en een verzorgde uitstraling. Binnen beschikt de woning over een moderne keuken en badkamer. Dankzij de vele raampartijen voelt de woonkamer heerlijk licht en ruimtelijk aan. Met maar liefst vier slaapkamers, waarvan één op de zolderverdieping, is er volop ruimte voor het hele gezin. De woning is volledig geïsoleerd, voorzien van 12 zonnepanelen en ligt in een jonge en rustige woonwijk. Zoek je een moderne woning waar je zó in kunt? Dan zou dit zomaar eens jouw nieuwe thuis kunnen zijn.

Pluspunten op een rij:
- Bouwjaar 2014
- Energielabel A
- 12 zonnepanelen
- Badkamer en keuken zijn modern uitgevoerd
- Modern aangelegde tuin met overkapping en houten berging
- Rustige ligging in het dorp en toch dichtbij voorzieningen

Indeling:
Begane grond: hal, toilet met fontein, meterkast en trapkast, ruime en lichte woonkamer met nette vloeren en wanden. Woonkamer is opgedeeld in een ruime zithoek aan de voorzijde en het eetgedeelte aan de achterzijde met open moderne keuken van inbouwapparatuur zoals inductiekookplaat (2024), afzuigkap, vaatwasser (2025), oven en koelkast. Via het eetgedeelte ga je via de openslaande deuren of loopdeur richting de overkapping en de achtertuin.

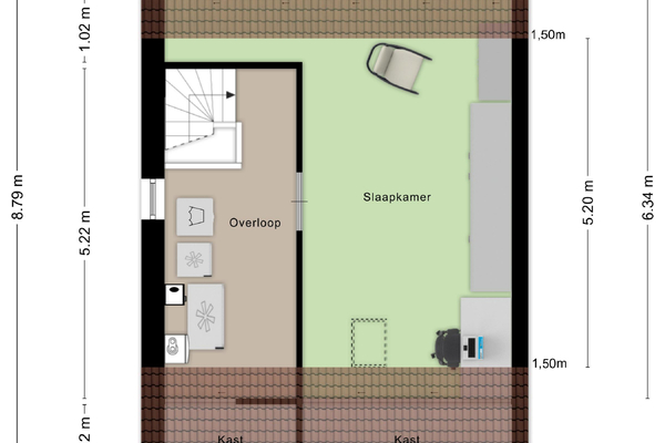
Verdieping: Overloop, 3 slaapkamers en moderne badkamer met ligbad, douche, toilet en wastafel.

Vaste trap naar de ruime zolder: Voorzolder met aansluiting voor wasapparatuur en CV-opstelling, royale slaapkamer met veel daglicht en opbergmogelijkheden.

Tuin: modern aangelegde tuin met een ruim overdekt terras, diverse boompjes en perken, pergola, berging en praktische achterom.

Kenmerken:
Type woning: twee-onder-één-kapwoning met houten berging
Woonoppervlakte: 124 m²
Externe berging: 6 m²
Overkapping: 16 m³
Perceelgrootte: 241 m²
Bouwjaar: 2014
Aantal slaapkamers: 4 slaapkamers
Verwarming en warm water: CV combiketel Atag, bouwjaar 2014
Isolatie: geheel geïsoleerd
Energielabel: A
Glasvezel aanwezig

Alle kenmerken

Overdracht

Koopprijs € 459.000,- k.k.
Status Onder bod
Aanvaarding In overleg

Bouwvorm

Type Twee onder een kapwoning
Soort Eengezinswoning
Bouwjaar 2014
Bouwvorm Bestaande bouw
Liggingen Aan rustige weg, In woonwijk

Indeling

Gebruiksoppervlakte woonfunctie 124 m²
Perceel oppervlakte 241 m²
Inhoud 439 m³
Aantal kamers 5
Aantal slaapkamers 4
Aantal verdiepingen 3

Energie

Energieklasse A
Energielabel einddatum 31 december 2030
Isolatievormen Volledig geisoleerd
Soorten warm water Cv ketel
Soorten verwarming Cv ketel
Cv ketel type Atag
Cv ketel bouwjaar 2014
Cv combiketel Ja
Cv ketel brandstof Gas
Cv ketel eigendom Eigendom

Buitenruimte

Tuintypen Achtertuin, Voortuin
Type Achtertuin
Oppervlakte 90 m²
Positie Zuidoost
Achterom Ja
Kwaliteit Normaal

Bergruimte

Soort Vrijstaand hout

Parkeergelegenheid

Parkeer faciliteiten Op eigen terrein

Dak

Daktype Mansarde dak

Overig

Permanente bewoning Ja
Onderhouds waardering binnen Goed tot uitstekend
Onderhouds waardering buiten Goed tot uitstekend
Huidig gebruik Woonruimte
Huidige bestemming Woonruimte

Voorzieningen

Voorzieningen Mechanische ventilatie, Tv kabel, Dakraam, Glasvezel kabel, Zonnepanelen

Plattegronden

Wij maken gebruik van cookies

We gebruiken cookies om onze website te personaliseren en te verbeteren, om functies voor social media te bieden en om ons websiteverkeer te analyseren. Ook delen we informatie over uw gebruik van onze site met onze partners voor social media, adverteren en analyse. Deze partners kunnen deze gegevens combineren met andere informatie die u aan ze heeft verstrekt of die ze hebben verzameld op basis van uw gebruik van hun services.

Noodzakelijk
Analytisch
Personalisatie
Marketing