verkocht

Boomkruiper 2 - Boxmeer

€ 400.000,- k.k.

icon
116 m2
icon
235 m2
icon
1994
icon
2
icon
A
iconOmschrijving
iconFoto's & video's
iconAlle kenmerken
iconPlattegronden

Omschrijving

Op een rustige en centrale locatie in Boxmeer, op korte afstand van het centrum en alle dagelijkse voorzieningen, staat deze comfortabele en levensloopbestendige woning uit 1994. Met energielabel A, kunststof en houten kozijnen met dubbel glas, 10 zonnepanelen en goede isolatievoorzieningen is dit een woning met oog voor duurzaamheid. Dankzij de slaap- en badkamer op de begane grond is gelijkvloers wonen mogelijk. De achtertuin beschikt over een praktische berging, tuinhuis met overkapping en een achterom. Een ideale woning voor wie comfortabel en toekomstgericht wil wonen.

Pluspunten op een rij:
- Rustig gelegen op loopafstand van het centrum
- Energielabel A
- 10 zonnepanelen van 2022
- Levensloopbestendig met slaapkamer en badkamer op de begane grond
- Badkamer circa 2 jaar geleden vervangen
- Ruime extra slaapkamer en bergruimte op de 1e verdieping
- Deels kunststof en deels houten kozijnen met dubbel glas

Indeling
Begane grond:
Entree met meterkast en toilet. Lichte woonkamer met ruime zithoek. Eethoek in open verbinding met de keuken, voorzien van oven, gasfornuis, afzuigkap en koelkast. Aan de achterzijde bevindt zich een ruime slaapkamer met aangrenzende badkamer voorzien van inloopdouche, wastafel en wasmachineaansluiting. Hal met trapopgang.
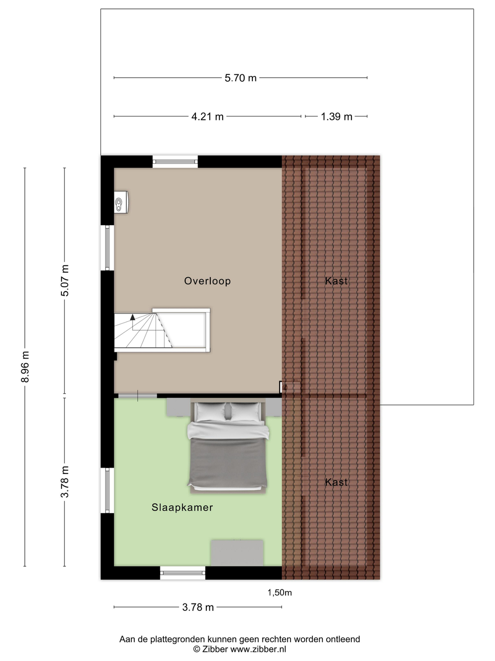
Eerste verdieping:
Royale voorzolder met bergruimte en cv-opstelling. Ruime slaapkamer met extra bergruimte onder het schuine dak.

Kenmerken:
Type: geschakelde woning
Bouwjaar: 1994
Woonoppervlakte: 116 m²
Overige inpandige ruimte (berging): 6 m²
Gebouw gebonden buitenruimte (overkapping): 14 m²
Externe bergruimte (houten berging): 15 m²
Inhoud: 433 m³
Perceeloppervlakte: 235 m² (perceel Boxmeer D 6557)
Optioneel perceel: circa 8 m² snippergroen van de gemeente (perceel Boxmeer D 6543). Meer info via EEF Makelaars
Slaapkamers: 2
Verwarming en warm water: CV-ketel Remeha 2011
Zonnepanelen: 10 stuks 2022
Energielabel: A
Isolatie: volledige isolatie
Glasvezel aanwezig

Alle kenmerken

Overdracht

Koopprijs € 400.000,- k.k.
Status Verkocht
Aanvaarding In overleg

Bouwvorm

Type Geschakelde woning
Soort Eengezinswoning
Bouwjaar 1994
Bouwvorm Bestaande bouw
Liggingen Aan rustige weg, In woonwijk

Indeling

Gebruiksoppervlakte woonfunctie 116 m²
Perceel oppervlakte 235 m²
Inhoud 433 m³
Aantal kamers 3
Aantal slaapkamers 2
Aantal verdiepingen 2

Energie

Energieklasse A
Energielabel einddatum 21 november 2035
Isolatievormen Dakisolatie, Muurisolatie, Vloerisolatie, Dubbel glas, Hr glas
Soorten warm water Cv ketel
Soorten verwarming Cv ketel
Cv ketel type Remeha
Cv ketel bouwjaar 2011
Cv combiketel Ja
Cv ketel brandstof Gas
Cv ketel eigendom Eigendom

Buitenruimte

Tuintypen Achtertuin, Voortuin
Type Achtertuin
Oppervlakte 43 m²
Positie Noordwest
Achterom Ja
Kwaliteit Normaal

Bergruimte

Soort Vrijstaand hout
Type Voorzien van elektra

Parkeergelegenheid

Parkeer faciliteiten Openbaar parkeren

Dak

Daktype Lessenaardak

Overig

Permanente bewoning Ja
Onderhouds waardering binnen Redelijk
Onderhouds waardering buiten Redelijk tot goed
Huidig gebruik Woonruimte
Huidige bestemming Woonruimte

Voorzieningen

Voorzieningen Rolluiken, Tv kabel, Dakraam, Zonnepanelen

Foto's

Video's

Plattegronden

Wij maken gebruik van cookies

We gebruiken cookies om onze website te personaliseren en te verbeteren, om functies voor social media te bieden en om ons websiteverkeer te analyseren. Ook delen we informatie over uw gebruik van onze site met onze partners voor social media, adverteren en analyse. Deze partners kunnen deze gegevens combineren met andere informatie die u aan ze heeft verstrekt of die ze hebben verzameld op basis van uw gebruik van hun services.

Noodzakelijk
Analytisch
Personalisatie
Marketing