Koningsspil 9
Rijkevoort

Bezichtiging aanvragen

Vraagprijs € 399.000,- k.k.

Koningsspil 9 | 5447 BN | Rijkevoort

overzicht

Instapklaar, energiezuinig en modern afgewerkt! Deze nette geschakelde 2-onder-1 kapwoning uit 2011 combineert comfort met duurzaamheid. Met 10 zonnepanelen (2023), maar liefst 3 airco’s (2024 & 2025), vloerverwarming in de…

Lees meer »

kenmerken

Type2-onder-1-kapwoning
Bouwjaar2011
Gebruiksoppervlakte woonfunctie101 m2
Aantal kamers3

Omschrijving

Instapklaar, energiezuinig en modern afgewerkt! Deze nette geschakelde 2-onder-1 kapwoning uit 2011 combineert comfort met duurzaamheid. Met 10 zonnepanelen (2023), maar liefst 3 airco’s (2024 & 2025), vloerverwarming in de woonkamer én badkamer en een WTW-installatie is dit een woning die helemaal klaar is voor de toekomst. De hoogwaardige afwerking, waaronder een massief eiken keuken, maakt het plaatje compleet. De ligging in een fijne nieuwe woonwijk is ideaal. Kortom, een woning die je zeker gezien wil hebben!

Pluspunten
– 10 zonnepanelen (2023)
– 3 airco’s 2024 & 2025 (koelen én verwarmen)
– Vloerverwarming in woonkamer en badkamer
– WTW-installatie voor optimaal binnenklimaat
– Luxe massief eiken keuken
– Badkamer met dubbele wastafel, toilet en inloopdouche
– Bouwjaar 2011

Indeling
Begane grond
Entree met hal, meterkast en toiletruimte. De woonkamer is tuingericht en geniet van veel lichtinval. Dankzij de vloerverwarming en airco is het hier het hele jaar door comfortabel. De open keuken aan de voorzijde is uitgevoerd in massief eiken en is voorzien van koelkast, combi-oven, vaatwasser, inductiekookplaat en afzuigkap.
Eerste verdieping
Overloop met toegang tot 2 slaapkamers (derde mogelijk) en de badkamer. De badkamer is modern afgewerkt en voorzien van een dubbele wastafel, toilet en ruime inloopdouche. Ook hier is vloerverwarming aanwezig. Beide slaapkamers zijn voorzien van airconditioning.
Tweede verdieping
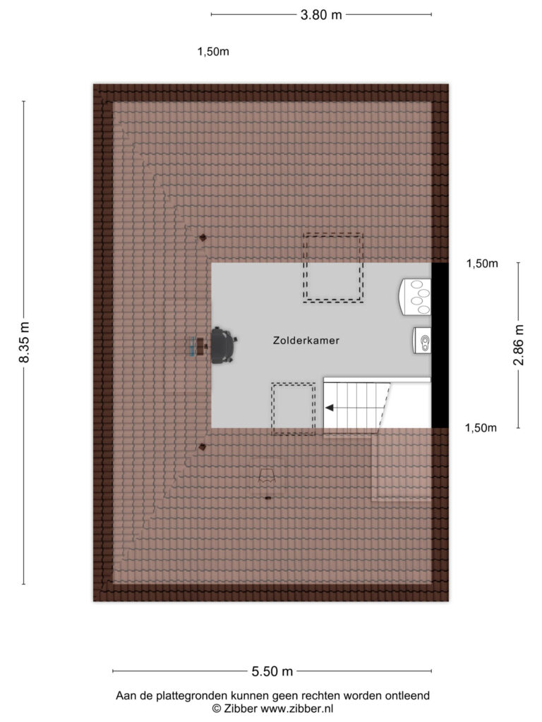
Via vaste trap bereikbare zolderverdieping. Een praktische ruimte die geschikt is als berging, werkruimte of hobbyruimte.

Tuin
De woning beschikt over een verzorgde tuin waar u heerlijk kunt ontspannen. Dankzij de geschakelde bouw geniet u hier van een prettige combinatie van privacy en openheid. Een fijne plek om te genieten van het buitenleven.

Kenmerken
– Type woning: geschakelde 2-onder-1 kapwoning
– Woonoppervlakte: 101 m²
– Zolder: 11 m²
– Inhoud: 397 m³
– Perceel: 189 m²
– Bouwjaar: 2011
– Energielabel: A
– Aantal slaapkamers: 2 (3e mogelijk)
– Verwarming/warm water: Cv-ketel Extreme intergas 2023, 3 airco’s 2024 & 2025
– Zonnepanelen 10 stuks (2023)
– Isolatie: volledig
– Glasvezel aanwezig

Alle Kenmerken



Overdracht

StatusOnder bod
Koopprijs€ 399.000,- k.k.
Aanvaardingin overleg

Bouwvorm

Type2-onder-1-kapwoning
Soorteengezinswoning
Type2-onder-1-kapwoning
Bouwjaar2011
Bouwvormbestaande bouw
Liggingenaan rustige weg, in woonwijk

Indeling

Gebruiksoppervlakte woonfunctie101 m2
Perceel oppervlakte189 m2
Type2-onder-1-kapwoning
Inhoud396 m3
Aantal kamers3
Aantal slaapkamers2
Aantal verdiepingen3

Energie

EnergieklasseA
Energielabel einddatum11 december 2030
Isolatievormenvolledig geïsoleerd
Soorten warm waterc.v.-ketel

Buitenruimte

Tuintypenachtertuin, voortuin
Typeachtertuin
Oppervlakte68 m2
Positiewest
AchteromJa
Kwaliteitnormaal

Bergruimte

Soortaangebouwd steen
Voorzieningenvoorzien van elektra

Parkeergelegenheid

Parkeer faciliteitenopenbaar parkeren

Dak

Dak typeschilddak

Overig

Permanente bewoningJa
Waarderinggoed
Waarderinggoed

Voorzieningen

Voorzieningendakraam, tv kabel, airconditioning

plattegronden