Bredeweg 3
Ottersum

Bezichtiging aanvragen

Vraagprijs € 492.000,- k.k.

Bredeweg 3 | 6595 AT | Ottersum

overzicht

118 m2 woonoppervlakte + 80 m2 soutterain/zolder = bijna 200 m2 onder een dak! Ben je op zoek naar een comfortabele en energiezuinige woning met verrassend veel ruimte? Dan is…

Lees meer »

kenmerken

Type2-onder-1-kapwoning
Bouwjaar1980
Gebruiksoppervlakte woonfunctie118 m2
Aantal kamers9

Omschrijving

118 m2 woonoppervlakte + 80 m2 soutterain/zolder = bijna 200 m2 onder een dak! Ben je op zoek naar een comfortabele en energiezuinige woning met verrassend veel ruimte? Dan is Bredeweg 3 in Ottersum zeker het bekijken waard! Deze nette en goed onderhouden woning is volledig onderkelderd, waardoor je beschikt over een zee aan praktische ruimte. Dankzij de aanwezigheid van een warmtepomp en zonnepanelen zijn de energielasten bijzonder laag. De ligging is prettig in een rustige woonwijk met eigen oprit, achterom en een in 2021 geplaatste schuur. Binnen tref je onder andere een moderne badkamer, nette keuken en airco’s op de verdieping om te koelen en verwarmen. Een fijne plek om comfortabel te wonen, met alles wat je nodig hebt binnen handbereik!

Pluspunten op een rij:
– 118 m2 woonoppervlakte + 80 m2 soutterain/zolder = bijna 200 m2 onder een dak!
– Verduurzaamd met 10 zonnepanelen en een warmtepomp in 2023 – lage energiekosten
– Airco’s op de verdieping aanwezig
– Volledig onderkelderd – veel praktische ruimte
– Fijne ligging in een rustige woonwijk
– Eigen oprit en achterom
– Praktische en ruime schuur van 2021
– Nette keuken
– Luxe badkamer

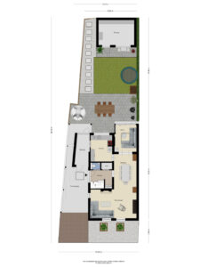
Indeling:
Begane grond: Hal/entree met meterkast en toilet, woonkamer met veel lichtinval en eethoek met zicht op de tuin en toegang tot de overkapping. Moderne keuken voorzien van inbouwapparatuur. Praktische achterbouw met toegang tot de oprit met carport of de achtertuin.
Eerste verdieping: Overloop met toegang tot 3 slaapkamers. Airco op de overloop en 1 van de slaapkamers. Badkamer met luxe afwerking voorzien van inloopdouche, vrijstaand ligbad,wastafel en toilet.
Bergzolder: veel bergruimte en bereikbaar via vlizotrap in 1 van de slaapkamers.
Souterrain: Volledig onderkelderd met diverse praktische ruimtes, geschikt voor opslag, hobby of extra werkplek.
Tuin: netjes aangelegd en voorzien van nieuwe vrijstaande schuur, overkapping met glazen wand en houtkachel en bereikbaar via achterom (2x). Oprit aan de voorzijde met carport.

Kenmerken:
Type woning: 2-onder-1 kapwoning
Woonoppervlakte: 118 m2
Overige inpandige ruimte: 80 m2
Externe bergruimte: 15 m2
Inhoud: 699 m3
Perceeloppervlakte: 265 m2
Aantal slaapkamers: 3
Bouwjaar: 1980
Energielabel: A
Verwarming / warm water: Warmtepomp
Isolatie: Dakisolatie, muurisolatie en dubbel glas

Alle Kenmerken



Overdracht

StatusBeschikbaar
Koopprijs€ 492.000,- k.k.
Aanvaardingin overleg

Bouwvorm

Type2-onder-1-kapwoning
Soorteengezinswoning
Type2-onder-1-kapwoning
Bouwjaar1980
Bouwvormbestaande bouw
Liggingenaan rustige weg, in woonwijk

Indeling

Gebruiksoppervlakte woonfunctie118 m2
Perceel oppervlakte265 m2
Type2-onder-1-kapwoning
Inhoud699 m3
Aantal kamers9
Aantal slaapkamers3
Aantal verdiepingen4

Energie

EnergieklasseA
Energielabel einddatum30 januari 2035
Isolatievormendakisolatie, muurisolatie, dubbel glas

Buitenruimte

Tuintypenachtertuin, voortuin
Typeachtertuin
Oppervlakte105 m2
Positienoordwest
AchteromJa
Kwaliteitnormaal

Bergruimte

Soortvrijstaand steen
Voorzieningenvoorzien van elektra

Parkeergelegenheid

Parkeer faciliteitenopenbaar parkeren

Dak

Dak typezadeldak

Overig

Permanente bewoningJa
Waarderinggoed
Waarderinggoed

Voorzieningen

Voorzieningendakraam, airconditioning

plattegronden