Bakelgeertstraat 27
Boxmeer

Bezichtiging aanvragen

Vraagprijs € 395.000,- k.k.

Bakelgeertstraat 27 | 5831 CS | Boxmeer

overzicht

Bakelgeertstraat 27 – Boxmeer: Karakteristiek wonen met hedendaags comfort! Ben je op zoek naar een sfeervolle, instapklare woning in één van de leukste wijken van Boxmeer? Dan is Bakelgeertstraat 27…

Lees meer »

kenmerken

Typetussenwoning
Bouwjaar1957
Gebruiksoppervlakte woonfunctie131 m2
Aantal kamers5

Omschrijving

Bakelgeertstraat 27 – Boxmeer: Karakteristiek wonen met hedendaags comfort!

Ben je op zoek naar een sfeervolle, instapklare woning in één van de leukste wijken van Boxmeer? Dan is Bakelgeertstraat 27 precies wat je zoekt! Deze charmante woning combineert karakter met modern wooncomfort en is volledig gerenoveerd én geïsoleerd. De woning is voorzien van een nieuw geïsoleerd dak, spouwmuurisolatie en vloerisolatie. Daarnaast beschikt de woning over kunststof kozijnen met HR++ beglazing, wat zorgt voor extra comfort en een goede energieprestatie. De keuken en badkamer zijn netjes en modern afgewerkt, waardoor je hier zó in kunt. Met maar liefst 131 m² woonoppervlakte en vier slaapkamers is dit bovendien een verrassend ruime woning, ideaal voor (jonge) gezinnen of thuiswerkers. Aan de achterzijde vind je een mooie tuinkamer die zorgt voor extra leefruimte en een prettige verbinding met de tuin. De fijne achtertuin met achterom, samen met de grote stenen berging, maakt het geheel compleet. Kortom: een heerlijke, ruime en comfortabele woning op een fijne plek in Boxmeer. Kom je kijken?

Pluspunten op een rij:
– Volledig geïsoleerd (dak-, spouw- en vloerisolatie)
– Kunststof kozijnen met HR++ beglazing
– Vier royale slaapkamers
– Sfeervolle, karakteristieke woning met eigentijdse afwerking
– Mooi aangelegde achtertuin met achterom
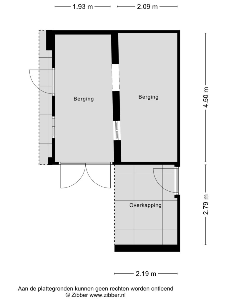
– Grote stenen berging
– Gelegen in een geliefde woonwijk van Boxmeer

Indeling van de woning:
Begane grond: Entree met royale hal, meterkast, toilet en trapkast. Royale woonkamer met vloerverwarming, half open keuken met inbouwapparatuur, bijkeuken met de aansluitingen voor de wasapparatuur en toegang tot de tuinkamer.
Eerste verdieping: Op de eerste verdieping bevinden zich drie slaapkamers, allen voorzien van inbouwkasten. De badkamer is modern ingericht met ligbad, wastafel en toilet.
Tweede verdieping: Vaste trap naar zolderverdieping, voorzolder met veel bergruimte en slaapkamer met dakraam.
Tuin: De tuin is sfeervol aangelegd en voorzien van fijn terras, de tuin is bereikbaar via de achterom en er is een grote berging.

Kenmerken:
Type: tussenwoning
Woonoppervlakte: ca. 131 m²
Externe bergruimte: ca. 19 m²
Serre: ca. 12 m²
Inhoud woning: 462 m³
Perceeloppervlakte: 195 m²
Bouwjaar: 1957
Aantal slaapkamers: 4
Verwarming/warmwater: HR-Combiketel, Vaillant Ecotec Plus 30/36 CW5, bouwjaar 2025
Energielabel: A
Isolatie: Dakisolatie, vloerisolatie, muurisolatie en kunststof kozijnen met HR++ glas

Alle Kenmerken



Overdracht

StatusBeschikbaar
Koopprijs€ 395.000,- k.k.
Aanvaardingin overleg

Bouwvorm

Typetussenwoning
Soorteengezinswoning
Typetussenwoning
Bouwjaar1957
Bouwvormbestaande bouw
Liggingenin woonwijk

Indeling

Gebruiksoppervlakte woonfunctie131 m2
Perceel oppervlakte195 m2
Typetussenwoning
Inhoud462 m3
Aantal kamers5
Aantal slaapkamers4
Aantal verdiepingen3

Energie

EnergieklasseA
Energielabel einddatum3 februari 2036
Isolatievormendakisolatie, muurisolatie, vloerisolatie, volledig geïsoleerd
Soorten warm waterc.v.-ketel

Buitenruimte

Tuintypenachtertuin, voortuin
Typeachtertuin
Oppervlakte60 m2
Positiezuidoost
AchteromJa
Kwaliteitnormaal

Bergruimte

Soortvrijstaand steen

Parkeergelegenheid

Parkeer faciliteitenopenbaar parkeren

Dak

Dak typezadeldak

Overig

Permanente bewoningJa
Waarderinggoed
Waarderinggoed

Voorzieningen

Voorzieningendakraam, rolluiken, tv kabel, rookkanaal

plattegronden